<주저리주저리 나열하는 첫장:시작하는글>


'21년도 1월! 구축아파트를 매매했다.
사회초년생이 첫 살집으로 28년 구축(나와 동갑^^)이지만 리모델링한지 4년정도 된 아파트로 결정했고,
최소한의 금액을 투자해서, "셀프"수리를 진행했다.

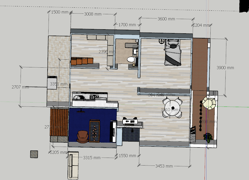
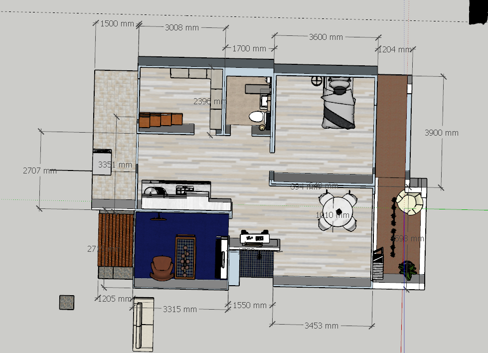
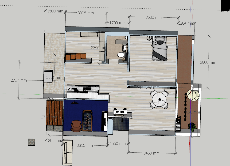
부동산 평면도를 그대로따서 나름 살고싶은느낌으로 스케치업 해보았는데, 수납공간은 전혀고려하지 않은 시안으로 현재집과는 다른부분이 많다 ㅎ.
구축중 가장 썩은구조중 하나라는 2bay구조...ㅠㅠ
그중에서도 23평으로 "좁아보이지"않고 방마다"다양한기능"을 할수있어야 했다.
일단 스케치업내용대로 구상하려면 도화지를(장판,벽)을 깨끗하게 다듬어야하는데
최소한의 비용으로 할수있었던 팁을 적어볼 예정이다.
건축쪽을 모르는사람은 업체수배도 어렵기때문에, 편리하게 가격비교하기 단일시공 공정은 숨고앱을 활용하는 과정을 공유하고
적은금액으로 하려면 노가다(직접하기^^)는 필수지만, 유튜브등을 활용해서 간단한 시공방식을 집에 적용했던 과정도 기록할예정이다.
작은집+구축이라는 악조건을 아기자기하게 풀어내기위해서 보아온 잡지+서적들을 쭈욱 정리하려고 한다

예비목차

1)2bay구조란? 쉽게 분석하고 쉽게적용하기!
2)구축입주/매매할때 확인할것! (인테리어를 고려해서 포기할것과 취할것)
3)셀프인테리어의 시작(셀프인테리어라고 다 내가하는게 아니다! 업체에 시켯던 공정과 직접했던 공정?)
~공정별로 기본계획 수립하기(쪼개서 관리하기)
4)280만원짜리 호텔식 화장실 만들기~ 시공의뢰과정!
5)50만원에 아치형 가벽세우기(우당탕탕 셀프 목공 시공)
6)아파트에 거실에 레일조명을 적용해보면? 포인트조명과 작은집에 적용하는 조명종류 정리!
7)현관문 페인트칠로 새집문처럼 만들기+베란다에 공간분리용 커튼설치와 달조명 달기, 포차만들기
8)베란다 카페트 셀프시공으로 겨울에도 따듯한 베란다+ 1년동안 사용하면서 관리했던 방법
'인테리어' 카테고리의 다른 글
| 2bay 24평 구축아파트 셀프 집꾸미기 - 침실, 전등 편 (0) | 2023.05.14 |
|---|---|
| 50만원에 2bay아파트 현관가벽 세우기 (0) | 2023.03.04 |
| 2bay 20평대 구축 - 200만원대로 좁지만 아늑한 화장실 만들기 (2) | 2023.01.23 |
| 2bay구조란? 쉽게 적용하기! + 90년식 구축입주 + 입구부터 머리아픈 2bay 현관 개조 (0) | 2023.01.07 |